Relais du temoin de charge de ma 2cv qui s'allume très faiblement

Clignotants, alternateurs, allumage électronique, panne d'essuie-glaces, batterie qui fuit, tension batterie, point de masse, remontage des faisceaux, branchement de la bobine, phares...

Modérateurs : Deuchémoi, zamzam, Eric13190

Répondre
Avatar du membre
mic736
Nouveau deuchiste
Nouveau deuchiste
Messages : 5
Enregistré le : 25 août 2025, 11:08
Ma deuche : Mehari
Date de naissance : 29 mai 1954
Localisation : Amboise

Relais du temoin de charge de ma 2cv qui s'allume très faiblement

Message par mic736 »

Bonjour
J'ai mon temoin de charge au tableau qui s'allume très très faiblement. Et avec un petit délai lorsque je mets le contact. Des que le moteur tourne, il s'éteint normalement.
D'où peut provenir le fait, que le témoin s'allume faiblement ?
C'est un transistor qui commute dans le relais du témoin. Normalement donc , tout ou rien?
Avez vous le plan avec la liste des composants pour refaire le relais qui n'est plus commercialisé ?


Avatar du membre
Lolodubalaou
Docteur deuchiste
Docteur deuchiste
Messages : 1946
Enregistré le : 17 nov. 2022, 22:04
Ma deuche : 2cv Sausss Ente
Date de naissance : 10 nov. 1956
Localisation : Golfe du Morbihan

Re: Relais du temoin de charge de ma 2cv qui s'allume très faiblement

Message par Lolodubalaou »

Hi,

1 - c'est quoi comme 2cv ? Quel modèle ?

Laurent
Avatar du membre
CHARLYSTONE
Docteur deuchiste
Docteur deuchiste
Messages : 7129
Enregistré le : 27 févr. 2018, 14:52
Ma deuche : 2cv charleston de 06. 1990 2cv6 04.1983
Date de naissance : 30 avr. 1958
Localisation : 38 pres de bourgoin jallieu

Re: Relais du temoin de charge de ma 2cv qui s'allume très faiblement

Message par CHARLYSTONE »

Lolodubalaou a écrit : 04 oct. 2025, 12:09 Hi,

1 - c'est quoi comme 2cv ? Quel modèle ?

Laurent
Bonjour, c'est une Méhari de 81
Avatar du membre
Lolodubalaou
Docteur deuchiste
Docteur deuchiste
Messages : 1946
Enregistré le : 17 nov. 2022, 22:04
Ma deuche : 2cv Sausss Ente
Date de naissance : 10 nov. 1956
Localisation : Golfe du Morbihan

Re: Relais du temoin de charge de ma 2cv qui s'allume très faiblement

Message par Lolodubalaou »

Oki, merki !

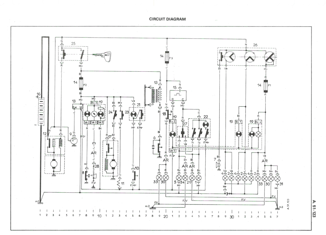
Sur le schéma de la Méhari (jusque juillet 1981), je ne comprends pas comment fonctionne le témoin de charge :

Capture d’écran 2025-10-05 à 10.18.28.png

Laurent
Avatar du membre
CHARLYSTONE
Docteur deuchiste
Docteur deuchiste
Messages : 7129
Enregistré le : 27 févr. 2018, 14:52
Ma deuche : 2cv charleston de 06. 1990 2cv6 04.1983
Date de naissance : 30 avr. 1958
Localisation : 38 pres de bourgoin jallieu

Re: Relais du temoin de charge de ma 2cv qui s'allume très faiblement

Message par CHARLYSTONE »

Bonjour je crois qu'il n'y a pas de témoin de charge, sue les modèles après 81 y a un galvanometre et les compteurs sont ceux de la LN,je pense que le témoins rouge est celui de la pression d'huile
Avatar du membre
Paskcal
Deuchiste de référence
Deuchiste de référence
Messages : 675
Enregistré le : 02 janv. 2025, 22:16
Ma deuche : 2cv6 special
Date de naissance : 11 juil. 1972
Localisation : Paris

Re: Relais du temoin de charge de ma 2cv qui s'allume très faiblement

Message par Paskcal »

CHARLYSTONE a écrit : 05 oct. 2025, 11:52 Bonjour je crois qu'il n'y a pas de témoin de charge, sue les modèles après 81 y a un galvanometre et les compteurs sont ceux de la LN,je pense que le témoins rouge est celui de la pression d'huile
Salut,

+1 je crois bien que charlystone à raison
Avatar du membre
Eric13190
Docteur deuchiste
Docteur deuchiste
Messages : 9470
Enregistré le : 01 janv. 2020, 15:10
Ma deuche : 2 cv6 club 1976
Date de naissance : 04 sept. 1973
Localisation : Allauch
Âge : 52

Re: Relais du temoin de charge de ma 2cv qui s'allume très faiblement

Message par Eric13190 »

Paskcal a écrit : 05 oct. 2025, 13:08
CHARLYSTONE a écrit : 05 oct. 2025, 11:52 Bonjour je crois qu'il n'y a pas de témoin de charge, sue les modèles après 81 y a un galvanometre et les compteurs sont ceux de la LN,je pense que le témoins rouge est celui de la pression d'huile
Salut,

+1 je crois bien que charlystone à raison
:euh: c'est même peut-être plus grave, non?
"La 2cv est une des rares voiture où l'important reste la personne". Quino
Image
Avatar du membre
Lolodubalaou
Docteur deuchiste
Docteur deuchiste
Messages : 1946
Enregistré le : 17 nov. 2022, 22:04
Ma deuche : 2cv Sausss Ente
Date de naissance : 10 nov. 1956
Localisation : Golfe du Morbihan

Re: Relais du temoin de charge de ma 2cv qui s'allume très faiblement

Message par Lolodubalaou »

CHARLYSTONE a écrit : 05 oct. 2025, 11:52 Bonjour je crois qu'il n'y a pas de témoin de charge, sue les modèles après 81 y a un galvanometre et les compteurs sont ceux de la LN,je pense que le témoins rouge est celui de la pression d'huile
Que nenni.gif
Que nenni.gif (871 Kio) Vu 933 fois

Que nenni, que nenni, les amis ...

Pas de galvanomètre : juste un témoin de charge !



10.jpg

Laurent

PS : il y avait un galvanomètre jusque juillet 1978, date du passage en compteur de LN. Donc, pas de galvanomètre sur une 1981.
Avatar du membre
Paskcal
Deuchiste de référence
Deuchiste de référence
Messages : 675
Enregistré le : 02 janv. 2025, 22:16
Ma deuche : 2cv6 special
Date de naissance : 11 juil. 1972
Localisation : Paris

Re: Relais du temoin de charge de ma 2cv qui s'allume très faiblement

Message par Paskcal »

Lolodubalaou a écrit : 05 oct. 2025, 15:42
CHARLYSTONE a écrit : 05 oct. 2025, 11:52 Bonjour je crois qu'il n'y a pas de témoin de charge, sue les modèles après 81 y a un galvanometre et les compteurs sont ceux de la LN,je pense que le témoins rouge est celui de la pression d'huile
Que nenni, que nenni, les amis ...
Pas de galvanomètre : juste un témoin de charge !
Laurent
PS : il y avait un galvanomètre jusque juillet 1978, date du passage en compteur de LN. Donc, pas de galvanomètre sur une 1981.
Salut,

Pas aussi sûr que toi , sur une Deudeuche 6 spéciale de 84 que j'avais c'était le galvanometre qui était foutu :pense:
Avatar du membre
Lolodubalaou
Docteur deuchiste
Docteur deuchiste
Messages : 1946
Enregistré le : 17 nov. 2022, 22:04
Ma deuche : 2cv Sausss Ente
Date de naissance : 10 nov. 1956
Localisation : Golfe du Morbihan

Re: Relais du temoin de charge de ma 2cv qui s'allume très faiblement

Message par Lolodubalaou »

Paskcal a écrit : 08 oct. 2025, 23:31
Pas aussi sûr que toi , sur une Deudeuche 6 spéciale de 84 que j'avais c'était le galvanometre qui était foutu :pense:
Hi,

oui, sur la 2cv, le galvanomètre apparait dès 1970.
Capture d’écran 2025-10-09 à 07.19.32.png

Mais si, j'ai bien compris, ici, nous sommes sur une Méhari ...

Laurent
Avatar du membre
Paskcal
Deuchiste de référence
Deuchiste de référence
Messages : 675
Enregistré le : 02 janv. 2025, 22:16
Ma deuche : 2cv6 special
Date de naissance : 11 juil. 1972
Localisation : Paris

Re: Relais du temoin de charge de ma 2cv qui s'allume très faiblement

Message par Paskcal »

Lolodubalaou a écrit : 09 oct. 2025, 07:24
Paskcal a écrit : 08 oct. 2025, 23:31
Pas aussi sûr que toi , sur une Deudeuche 6 spéciale de 84 que j'avais c'était le galvanometre qui était foutu :pense:
Hi,

oui, sur la 2cv, le galvanomètre apparait dès 1970.

Capture d’écran 2025-10-09 à 07.19.32.png


Mais si, j'ai bien compris, ici, nous sommes sur une Méhari ...

Laurent
Salut Laurent,

Ah je savais pas que c'était différent...
Répondre
www.piecesauto-pro.fr